产品型号
JYH941电动截止阀产品
JYH941电动截止阀 主要特点
JYH941电动截止阀适用于公称压力PN1.6~16MPa,工作温度-29~550℃的石油、化工、制药、化肥、电力行业等各种工况的管路上,切断或接通管路介质。驱动方式有手动、齿轮传动、电动、气动等。
该电动调节阀的结构
1、选材考究,符合国内、外相关标准,结构合理,造型美观。
2、阀瓣、阀座密封面采用铁基合金堆焊或司太立(Stellite)钴基硬质合金堆焊而成,耐磨、耐高温、耐腐蚀、抗擦伤性能好,使用寿命长。
4、阀杆经调质及表面氮化处理,有良好的抗腐蚀性和抗擦伤性。
5、可采用各种配管法兰标准及法兰密封面型式,满足各种工程需要及用户要求。
6、阀体材料品种齐全,填料、垫片可根据实际工况或用户要求合理选配,能适用于各种压力、温度及介质工况。
7、倒密封采用螺纹连接密封座或本体堆焊奥氏体不锈钢而成,密封可靠,更换填料可在不停机情况下进行,方便快捷,不影响系统运行。
8、配有DZW系列多回转式电动装置,具有壳体小,重量轻,功能全,并可与远程电脑配套使用,也可按用户要求选配电动装置。
JYH941电动截止阀 技术参数和性能指标
项目技术性能指标
基本误差(%)不超过±2.5﹪
回差(%)≤1.5﹪
死区(%)≤3﹪
泄漏量0.01%×阀额定容量
阀体WCB、WC6、20CrMo
阀芯316不锈钢
笼罩17-4PH
阀杆17-4PH
阀座316不锈钢
JYH941电动截止阀 适用范围城建、化工、冶金、石油、制药、食品、饮料、环保
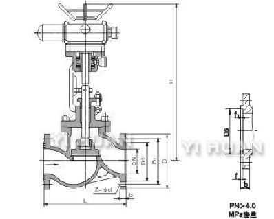
JYH941电动截止阀 结构

JYH941电动截止阀结构
JYH941电动截止阀 应用规范
设计与制造 |
GB/T12235 |
| 连接端尺寸 |
结构长度 |
GB/T12221 |
| 法兰尺寸 |
JB/T79 |
| 检验与试验 |
JB/T9092 |
| 材 料 |
碳钢 |
GB/T12229 |
| 不锈钢 |
GB/T12230 |
| 合金钢 |
Q/ZB66 |
| 标 志 |
GB/T12220 |
| 供 货 |
JB/T7928 |
JYH941电动截止阀 主要零件材料及主要用途
阀体 |
阀盖 |
阀瓣 |
密封圈 |
阀杆 |
填料 |
适用介质 |
适用温度
(≤℃) |
| WCB |
WCB+D507MO |
D577 |
2Crl3 |
柔性石墨 |
水、油品、蒸汽 |
425 |
| ZGlCrl8Ni9Ti |
0Crl8Ni9Ti+
Stellite12 |
Stellite6 |
lCrl8Ni9Ti |
PTFE |
硝酸类 |
200 |
| ZGlCrl8Ni2Mo2Ti |
CF8M+
Stellite12 |
lCrl8Ni2Mo2Ti |
lCrl8Ni2Mo2Ti |
PTFE |
磷酸类、
碱类、混酸 |
200 |
| ZG00Crl7Nil4M02 |
CF3M+
Stellite12 |
Stel1ite6 |
316L |
PTFE |
磷酸类、
尿素、甲铵液 |
200 |
| ZGlCr5MO |
ZGlCr5MO+
Stellite12 |
Stel1ite6 |
25Cr2Mo1VA |
柔性石墨 |
水、油品、蒸汽 |
550 |
JYH941电动截止阀 主要外形尺寸、连接尺寸及质量
公称压力
PN(MPa) |
公称通径
DN(mm) |
标准值 |
参考值 |
| L |
D |
D1 |
n2 |
D6 |
b |
f |
f1 |
Z-φd |
L1 |
H |
质量(kg) |
| 1.6 |
50 |
230 |
160 |
125 |
100 |
|
16 |
3 |
|
4-φ18 |
590 |
645 |
48 |
| 65 |
290 |
180 |
145 |
120 |
|
18 |
3 |
|
4-φ18 |
590 |
690 |
60 |
| 80 |
310 |
195 |
160 |
135 |
|
20 |
3 |
|
8-φ18 |
590 |
715 |
65 |
| 100 |
350 |
215 |
180 |
155 |
|
20 |
3 |
|
8-φ18 |
590 |
770 |
71 |
| 125 |
400 |
254 |
210 |
185 |
|
22 |
3 |
|
8-φ18 |
590 |
780 |
119 |
| 150 |
480 |
280 |
240 |
210 |
|
24 |
3 |
|
8-φ23 |
590 |
810 |
210 |
| 200 |
600 |
335 |
295 |
265 |
|
26 |
3 |
|
12-φ23 |
810 |
967 |
320 |
| 250 |
622 |
405 |
355 |
320 |
|
30 |
3 |
|
12-φ25 |
810 |
1143 |
550 |
| 300 |
698 |
460 |
410 |
375 |
|
30 |
4 |
|
12-φ25 |
830 |
1292 |
785 |
| 2.5 |
50 |
230 |
160 |
125 |
100 |
|
20 |
3 |
|
4-φ18 |
590 |
645 |
50 |
| 65 |
290 |
180 |
145 |
120 |
|
22 |
3 |
|
8-φ18 |
590 |
690 |
65 |
| 80 |
310 |
195 |
160 |
135 |
|
22 |
3 |
|
8-φ18 |
590 |
715 |
67 |
| 100 |
350 |
230 |
190 |
160 |
|
24 |
3 |
|
8-φ23 |
590 |
770 |
73 |
| 125 |
400 |
270 |
220 |
188 |
|
28 |
3 |
|
8-φ25 |
590 |
780 |
127 |
| 150 |
480 |
300 |
250 |
218 |
|
30 |
3 |
|
8-φ25 |
810 |
810 |
215 |
| 200 |
600 |
360 |
310 |
278 |
|
34 |
3 |
|
12-φ25 |
810 |
967 |
322 |
| 250 |
622 |
425 |
370 |
332 |
|
36 |
3 |
|
12-φ30 |
830 |
1143 |
585 |
| 300 |
698 |
485 |
430 |
390 |
|
40 |
4 |
|
16-φ30 |
830 |
1292 |
795 |
| 4.0 |
50 |
230 |
160 |
125 |
100 |
88 |
20 |
3 |
4 |
4-φ18 |
590 |
645 |
61 |
| 65 |
290 |
180 |
145 |
120 |
110 |
22 |
3 |
4 |
8-φ18 |
590 |
690 |
75 |
| 80 |
310 |
195 |
160 |
135 |
121 |
22 |
3 |
4 |
8-φ18 |
590 |
715 |
84 |
| 100 |
350 |
230 |
190 |
160 |
150 |
24 |
3 |
4.5 |
8-φ23 |
590 |
770 |
101 |
| 125 |
400 |
270 |
220 |
188 |
176 |
28 |
3 |
4.5 |
8-φ25 |
810 |
782 |
207 |
| 150 |
480 |
300 |
250 |
218 |
204 |
30 |
3 |
4.5 |
8-φ25 |
810 |
875 |
226 |
| 200 |
600 |
375 |
320 |
282 |
260 |
38 |
3 |
4.5 |
12-φ30 |
810 |
1160 |
399 |
| 6.4 |
50 |
300 |
175 |
135 |
105 |
88 |
26 |
3 |
4 |
4-φ23 |
590 |
710 |
64 |
| 65 |
340 |
200 |
160 |
130 |
110 |
28 |
3 |
4 |
8-φ23 |
590 |
750 |
77 |
| 80 |
380 |
210 |
170 |
140 |
121 |
30 |
3 |
4 |
8-φ23 |
590 |
785 |
86 |
| 100 |
430 |
250 |
200 |
168 |
150 |
32 |
3 |
4.5 |
8-φ25 |
810 |
837 |
171 |
| 125 |
500 |
295 |
240 |
202 |
176 |
36 |
3 |
4.5 |
8-φ30 |
810 |
1031 |
243 |
| 150 |
550 |
340 |
280 |
240 |
204 |
38 |
3 |
4.5 |
8-φ34 |
830 |
1066 |
296 |
| 200 |
650 |
405 |
345 |
300 |
260 |
44 |
3 |
4.5 |
12-φ34 |
830 |
1213 |
420 |
| 10.0 |
50 |
300 |
195 |
145 |
112 |
88 |
28 |
3 |
4 |
4-φ25 |
590 |
714 |
81 |
| 65 |
340 |
220 |
170 |
138 |
110 |
32 |
3 |
4 |
8-φ25 |
590 |
734 |
102 |
| 80 |
380 |
230 |
180 |
148 |
121 |
34 |
3 |
4 |
8-φ30 |
810 |
847 |
175 |
| 100 |
430 |
265 |
210 |
172 |
150 |
38 |
3 |
4.5 |
8-φ30 |
810 |
950 |
194 |
| 125 |
500 |
310 |
250 |
210 |
176 |
42 |
3 |
4.5 |
8-φ34 |
830 |
1141 |
285 |
| 150 |
550 |
350 |
290 |
250 |
204 |
46 |
3 |
4.5 |
12-φ34 |
830 |
1240 |
450 |
| 200 |
650 |
430 |
360 |
312 |
260 |
54 |
3 |
4.5 |
12-φ4l |
830 |
1425 |
850 |
| 16.0 |
50 |
300 |
215 |
165 |
132 |
88 |
36 |
3 |
4 |
8-φ25 |
590 |
562 |
92 |
| 65 |
340 |
245 |
190 |
152 |
110 |
44 |
3 |
4 |
8-φ30 |
810 |
743 |
165 |
| 80 |
380 |
260 |
205 |
168 |
121 |
46 |
3 |
4 |
8-φ30 |
830 |
820 |
216 |
| 100 |
430 |
300 |
240 |
200 |
150 |
48 |
3 |
4.5 |
8-φ34 |
830 |
935 |
238 |
|