执行器选用与安装
使用AW气动执行器时,先确定阀门的扭矩,考虑管道介质;水蒸气或非润滑的介质增加25%安全值;非润滑的干气介质增加60%安全值;非润滑用气体输送的颗粒粉料介质增加1 00%安全值;对于清洁、无摩擦的润滑介质增加20%安全值,然后根据气源工作压力,查找双作用式或单作用式扭矩表,可得到准确的执行器型号。
气动执行器与阀门安装精度是否正确,直接影响执行器安全操作和使用寿命。合理安装是将执行器中心轴与阀杆必须绝对同轴,合理连接安装。执行器与阀门装配之前,应对阀门扭矩测定,不应超出所要求扭矩。装配后,气动执行器和阀门同时试验,对阀门加压至额定密封压力,执行器以气源压力为 0.4~0.7MPa或按用户需要的气源压力,对气动执行器的两个进气口进行切换进气,观察气动阀门的开启和关闭情况,不应有停顿、爬行现象,应开关灵活旋转,应要进行多次反复试验。
执行器及附件的功能和用途
双动式气动执行器:对阀门开启和关闭的两位式控制。
弹簧复位式:在电路气路切断或故障,阀门自动开启或关闭。
单电控电磁阀:供电时阀门打开或关闭,断电时阀门关闭或打开 (可提供防爆型)。
双电控电磁阀:一个线圈得电时阀门打开,另一个线圈得电时阀门关闭,有记忆功能 (可提供防爆型)。
限位开关回讯器:远距离传送阀门的开关位置的信号 (可提供防爆型)。
电气定位器:根据电流信号 (标准4-20mA)的大小对阀门的介质流量调节控制(可提供防爆型)。
气动定位器:根据气压信号 (标0.02-0.1MPa)的大小对阀门的介质流量调节控制。
电气转换器:将电流信号转换成气压信号,与气动定位器配套使用 (可提供防爆型)。
气源处理三联件:包括空气减压阀、过滤器、油雾器,对气源稳压、清洁、运动部件润滑作用。
手动操作机构:自动控制在不正常情况下可以手动操作。
订货须知
气动阀门是复杂的自动化控制仪表,由多种气动元件组成,用户根据控制需要,详细选择下列附件,并在技术合同上注明。
1、气动执行器:①双作用式、②单作用式、③型号规格、④动作时间。
2、电磁阀:①单控电磁阀、②双控电磁阀、③使用电压、④防爆型。
3、信号反馈:①机械式开关、②接近式开关、⑧输出电流信号、④使用电压、⑤防爆型。
4、定位器:①电气定位器、②气动定位器、⑧电流信号、④气压信号、⑤电气转换器、⑥防爆型。
5、气源处理三联件:①过滤减压阀、②油雾器。
6、手动操作机构。
7、特殊接口尺寸。
8、特殊定制。
1、AW气动执行器分为双作用式和单作用式(弹簧复位),两 个分体气缸,容易制造大尺寸缸体。满足各种大型旋转类阀门的需求。
2、输出扭矩大,动作灵活平稳;缸体内壁和活塞轴镀硬铬,具有很好的抗磨性;所有滑动部件之间配有无油润滑轴和导向环以降低摩擦系数,延长使用寿命,AW气动执行器的U型曲线特性输出扭矩更适用于大口径球阀、蝶阀。
3、回转角度:双作用式=90°,单作用式=90°从两端可调节角度±5°
4、工作环境温度:-20~90℃。
5、气源:过滤、干燥或加润滑油的洁净空气,最小气压0.4MPa,最大气压1.0MPa。
6、基本设计:气动双气缸双活塞拔叉传动机构。
型号AWxx=双作用式;
型号AWxxS=单作用式(弹簧复位)。
7、强大的附件功能:可配单(双)电控电磁阀、限位开关回讯器、电气位器、气源处理三联件以及手动操作机构,完全实现自动或手动控制。

AWS系列单作用气动执行器输出扭矩表
 
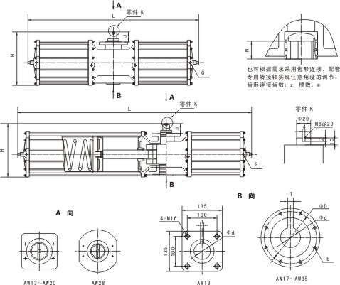
AW/AWS系列执行器安装尺寸

|